Voir le bien

Saint-Georges-d'Orques
(34680)
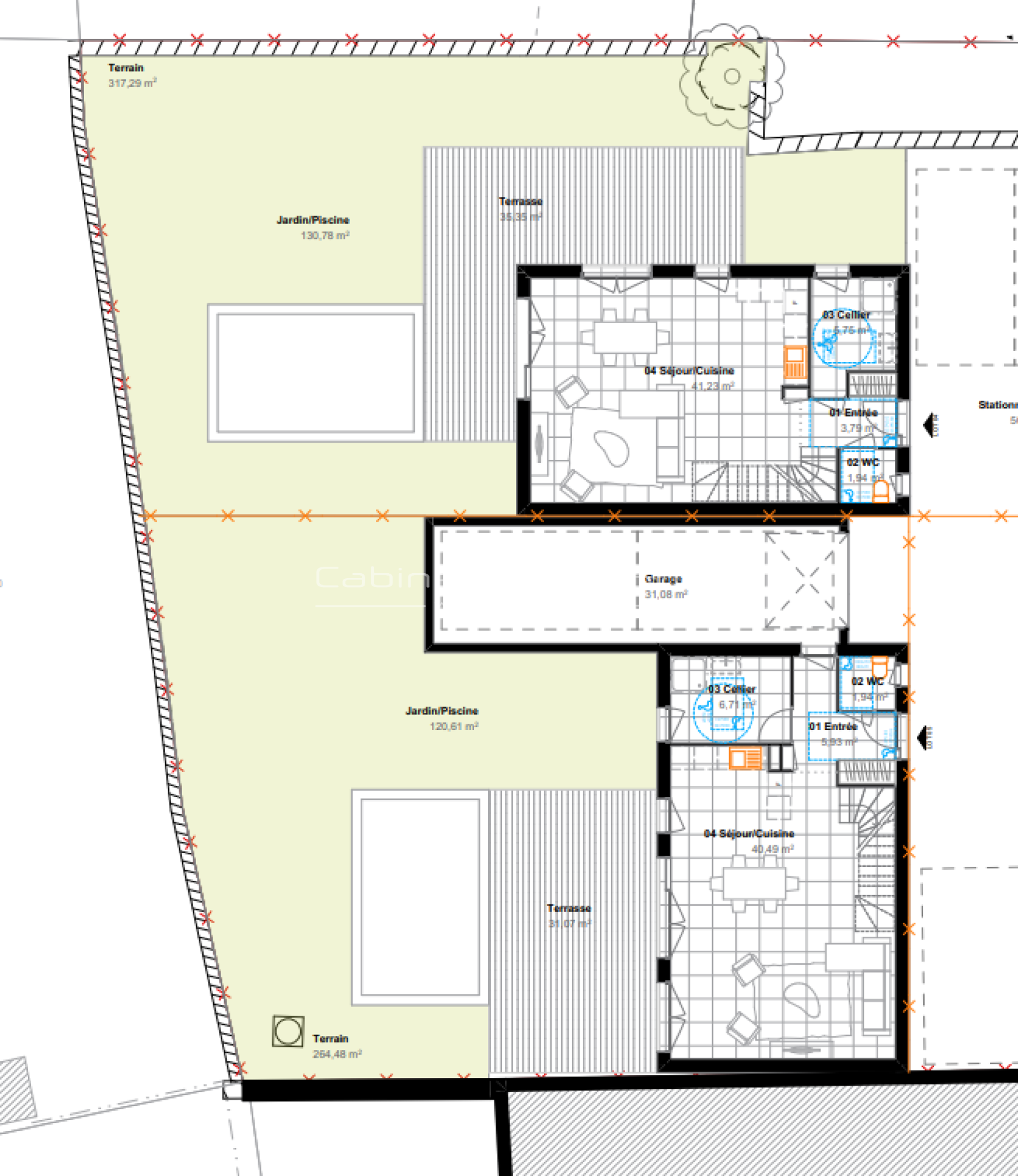
ST GEORGES D ORQUE TERRAIN A BATIR 317 M²
190 000 €
Ref : V200004346
Voir le bien